首页 > 陈列展览 > 基本陈列

智慧之光

作者:

发布日期:

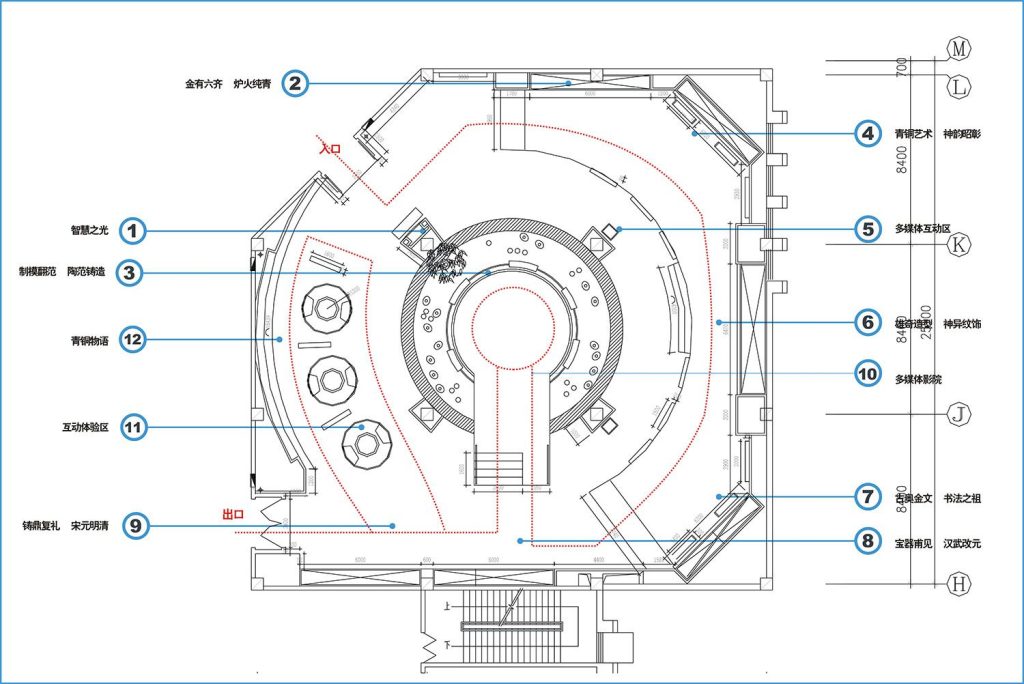
第四展厅定位于青铜器相关知识的传播,以圆中有圆的四环同心式分割空间。展厅面积606平方米,共展出文物160件。以单元叙说为逻辑构成,结合器物图文的静态展陈,漫画语言呈现的电子互动桌面,视觉冲击力强的宽幅系统,生动有趣的作坊体验,多层面多角度地诠释青铜器从制模翻范到铸造成器的完整工艺。重点展示青铜器动物世界及国宝折觥,展现青铜器造型及纹饰的独特艺术神韵,突出青铜文化的艺术特色。

Baidu
map